Automatický dvousloupový zvedák AD24 4 Tony
Kód: 14886



Tisíce spokojných zákazníkov
Toto sú reálne fotografie od naších zákazníkov
Detailní popis produktu

✅ Dvousloupový elektrohydraulický zvedák ELPRO s nosností 4 tuny. VHODNÝ PRO AUTOBUSY A OSOBNÍ AUTOMOBILY.
✅ Zásuvka namontovaná na sloupku.
✅ Rychlospojka na stlačený vzduch.
✅ Asymetrická, dvoustupňová ramena umožňují servis osobních automobilů, dodávek a vozidel 4x4.
✅ Odnímatelné adaptéry.
✅ Mechanická synchronizace na úrovni podlahy.
✅ Elektromagnetický výškový zámek s automatickým uvolněním.
✅ Automatický zámek ramene během zvedání.
✅ Koncový spínač.
✅ Bezpečnostní zařízení v souladu s normou EN1493:2010
✅ Certifikát CE.
Technické specifikace:
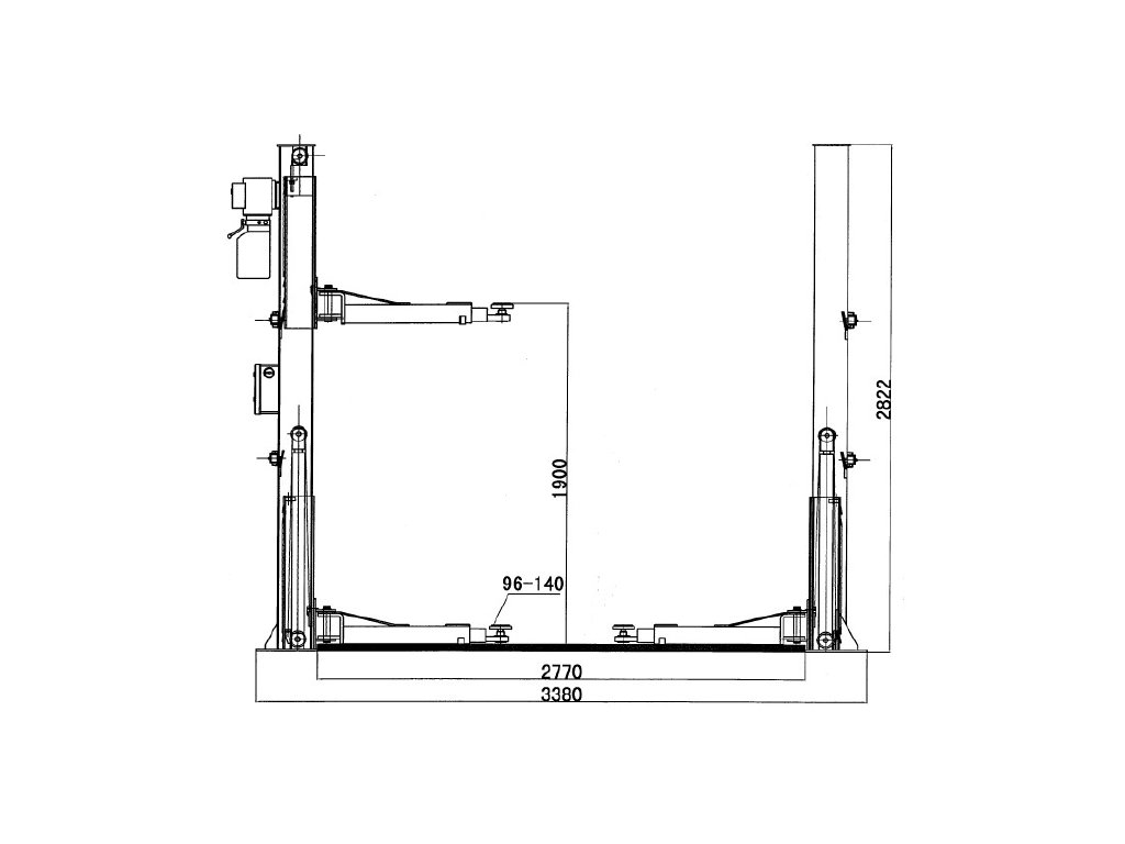
- Nosnost: 4000 kg

- Celková výška: 2822 mm
- Výška zdvihu: 96-1900 mm
- Rozteč vnějších sloupů: 3380 mm
- Rozteč vnitřních sloupů: 2830 mm
- 3-dílná přední ramena: 700-1400 mm
- 2-dílná zadní ramena: 900-1500 mm
- Výkon motoru: 2,2 kW
- Napájení: 400 V / 50 Hz
- Hmotnost: 600 kg
TECHNICKÉ VÝKRESY A POŽADAVKY NA PODKLAD
✅ Zvedák by měl být umístěn na rovném, suchém základě, bez prachu a jiných nečistot.
✅ Podlaha by měla být položena nejméně 28 dní před datem montáže.
✅ Minimální podmínky základu by měly být následující:
- ⏩Beton třídy B25 nebo vyšší
- ⏩Minimální tloušťka podkladu: 30 cm
- ⏩Minimální nosnost povrchu: 2,1 kg/mm²
- ⏩Mikrovýztuž nebo výztuž pod 20 cm od povrchu podlahy je povolena.
- ⏩Tyto vlastnosti musí být zaručeny na minimální ploše šířky 4000 mm a délky 1500 mm.
- ⏩Přípustná nerovnost podlahy: 5 mm
- ⏩ELEKTRICKÉ PŘIPOJENÍ: Musí být zajištěn 4žilový kabel o průřezu 2,5 mm².

SCHÉMA 1 – Plochá základová deska
✅ Základ musí mít šířku nejméně 4000 mm, délku 1500 mm a tloušťku nejméně 30 cm, s minimální třídou betonu B25.

SCHÉMA 2 – Dvě podpěry pod sloupy
✅ Dvě podpěry o rozměrech 1 m x 1 m, minimální tloušťka 50 cm, minimální třída betonu B25.
1 - Vzdálenost od hlavního sloupu ke zdi: Min. 70 cm
2 - Vzdálenost od druhého sloupu ke zdi: Min. 70 cm
3 - Vzdálenost od sloupu ke zdi: Min. 3200 mm
4 - Vzdálenost od sloupu ke zdi: Min. 3200 mm
5 - Požadovaná výška stropu – v závislosti na zvoleném modelu
_(2).png)